TATLA: LOG HOME PLAN 8
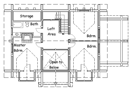
The Tatla’s grande entranceway features a large King Post Truss and covered deck. Additional log home design features include 2 dormers with a 3 log roof system, a large central fireplace, and a dramatic archway leading directly into the kitchen. The loft area provides for a Master Bedroom and luxurious Ensuite. The view from the loft to the main floor is spectacular. This home utilizes the maximum amount of floor space possible.










